194 040 ₽/мес

360 ₽ за м²/мес.

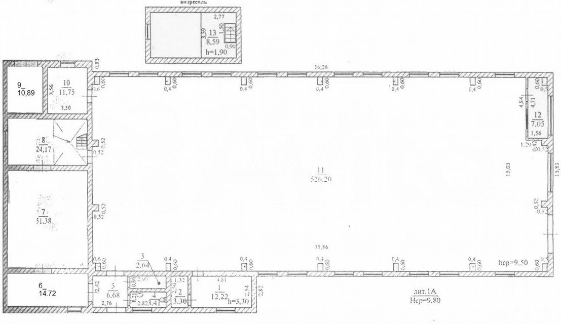
539 м²
Площадь
1/1
Этаж

Поделиться

Добавить в избранное

Склад 539 м² с эстакадой на Московском шоссе
АРЕНДА ОТ СОБСТВЕННИКА!

Сдаётся сухое неотапливаемое складское помещение в стратегически важной локации с прямым заездом с Московского шоссе. Ранее объект успешно эксплуатировался транспортной компанией ПЭК.

КЛЮЧЕВЫЕ ПРЕИМУЩЕСТВА ДЛЯ ЛОГИСТИКИ:
✅ Мощная зона разгрузки: Собственная эстакада, позволяющая одновременно разгружать до 2 фур.
✅ Защита от осадков: Перед центральными воротами и эстакадой установлен просторный навес — ваш товар всегда будет сухим при приемке.
✅ Удобный заезд: Прямое примыкание к Московскому шоссе обеспечивает быструю логистику без заездов вглубь города.
✅ Парковка: Предусмотрены места для легкового автотранспорта сотрудников и клиентов.

Технические характеристики:


Площадь: 539 кв.м.
Тип: Холодный склад (сухой, надежная кровля).
Ворота: Центральные, подходят для крупнотоннажного транспорта.
Территория: Охраняемая, с удобным маневрированием для большегрузов
Высота потолков 9, 5 м


Условия аренды:
— Прямой договор с собственником.
— Помещение полностью свободно и готово к работе.
— Цена: 194 040 рублей/месяц ( всего 270 рублей / кв м)

Звоните прямо сейчас! Организуем оперативный показ. Идеальный вариант для распределительного центра или оптового склада.

Номер объекта в базе # 23117

Аренда: 194 040 рублей/месяц

Звоните прямо сейчас и мы подберём для Вас персональные условия аренды!

 

Дата обновления: 3 апреля 2026