Продажа помещения свободного назначения

10 800 000 ₽

36 000 ₽ за м²

300 м²
Площадь
1/1
Этаж

Поделиться

Добавить в избранное

Часть кирпичного здания 300 м² под производство или сервис (ГАЗ)
Прямая продажа, юридическая чистота, без посредников

Продается часть отдельно стоящего капитального здания (бывшее здание бани) в черте города. Крепкий объект с огромным потенциалом для реновации под ваш бизнес.

ГЛАВНЫЕ ПРЕИМУЩЕСТВА ОБЪЕКТА:
✅ Капитальное строение: Здание полностью выполнено из кирпича, имеет надежный фундамент и высокие прочностные характеристики.
✅ Все коммуникации: Наличие газа (ГРПШ непосредственно у здания), центральное водоснабжение и водоотведение. Мощные коммуникации — идеальная база для пищевого производства, прачечной или цеха.
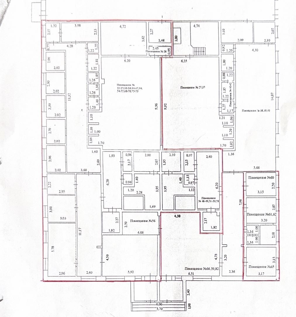
✅ Универсальная планировка: Площадь 300 кв.м позволяет организовать как просторные цеха, так и кабинетно-офисную нарезку. Общая площадь 376 кв м.
✅ Перед зданием имеется свободная территория для организации парковки, зоны погрузки-разгрузки или хранения материалов.
✅ Инвестиционная привлекательность: Цена объекта — 10 800 000 рублей. Это одно из самых доступных предложений за капитальное здание в такой площади!

ИДЕАЛЬНО ПОДХОДИТ ПОД:
— Производственный цех (пищевой, швейный, деревообработка).
— Складской комплекс или распределительный центр.
— Автосервис, детейлинг или малярный центр.
— Хостел или банный комплекс (после реконструкции).

Технические характеристики:


Общая площадь: 376 кв.м. Продается часть 300 кв м согласно схемы, выделено красным цветом!
Этажность: 1 (с возможностью обустройства антресолей).
Материал: Кирпич.
Окна: Большое количество окон обеспечивает отличное естественное освещение.


Юридический статус:
— Здание  в собственности. Продается только часть здания без ЗУ!
— Чистая продажа, обременений нет.
— Быстрый выход на сделку.

Звоните прямо сейчас! Эксперты DAEVROPA оперативно организуют показ объекта и помогут оценить техническую возможность подключения дополнительных мощностей.


Номер объекта  # 23173

Звоните прямо сейчас и мы подберём для Вас персональные условия покупки.

 

Дата обновления: 8 мая 2026