70 000 000 ₽

71 869 ₽ за м²

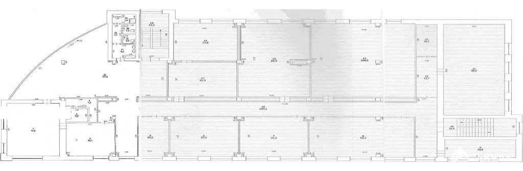
974 м²
Площадь
4/4
Этаж

Поделиться

Добавить в избранное

Продаётся 4 этаж здания информационного центра площадью 974 кв.м. 
Само здание представляет собой строение 6 этажей, в том числе подземный 1. 
Удобное расположение, транспортная доступность, наличие парковочных мест. 
Стабильный арендатор. Подробности по телефону.

Дата обновления: 28 февраля 2026