Аренда помещения свободного назначения

35 000 ₽/мес

270 ₽ за м²/мес.

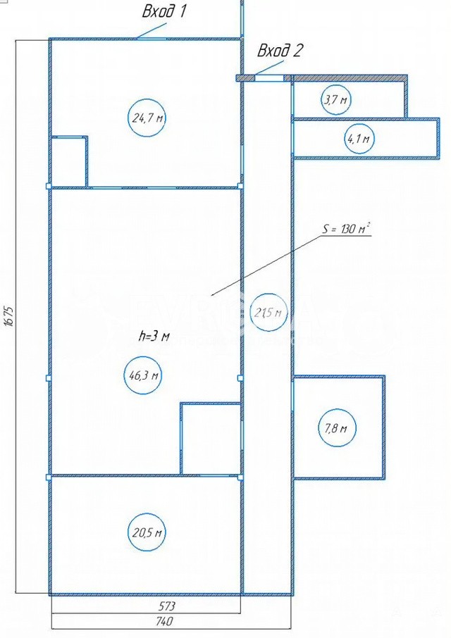
130 м²
Площадь
1/2
Этаж

Поделиться

Добавить в избранное

Описание
Помещение  Склад Офис 130 м²
БЕЗ КОМИССИИ ДЛЯ АРЕНДАТОРА!
Номер объекта в базе # 21900
Площадь: 130 кв.м
Этаж: 1
Этажность: 2
Все коммуникации проведены
Доступ в помещение: 24/7
Количество входов: 2 Отдельный
Коммунальные платежи: Оплачиваются отдельно (уточняйте)!
Электроснабжение: 35 кВт
Высота потолков: 3 м
Санузел: Совмещённый
Назначение: Без профиля, любое коммерческое использование

В настоящий момент помещение свободно

Аренда: 35 000 рублей/месяц

DAEVROPA с радостью поможет вам найти лучшее решение, соответствующее вашим требованиям и финансовым возможностям. Звоните или пишите — мы всегда на связи!

 

Дата обновления: 8 декабря 2025