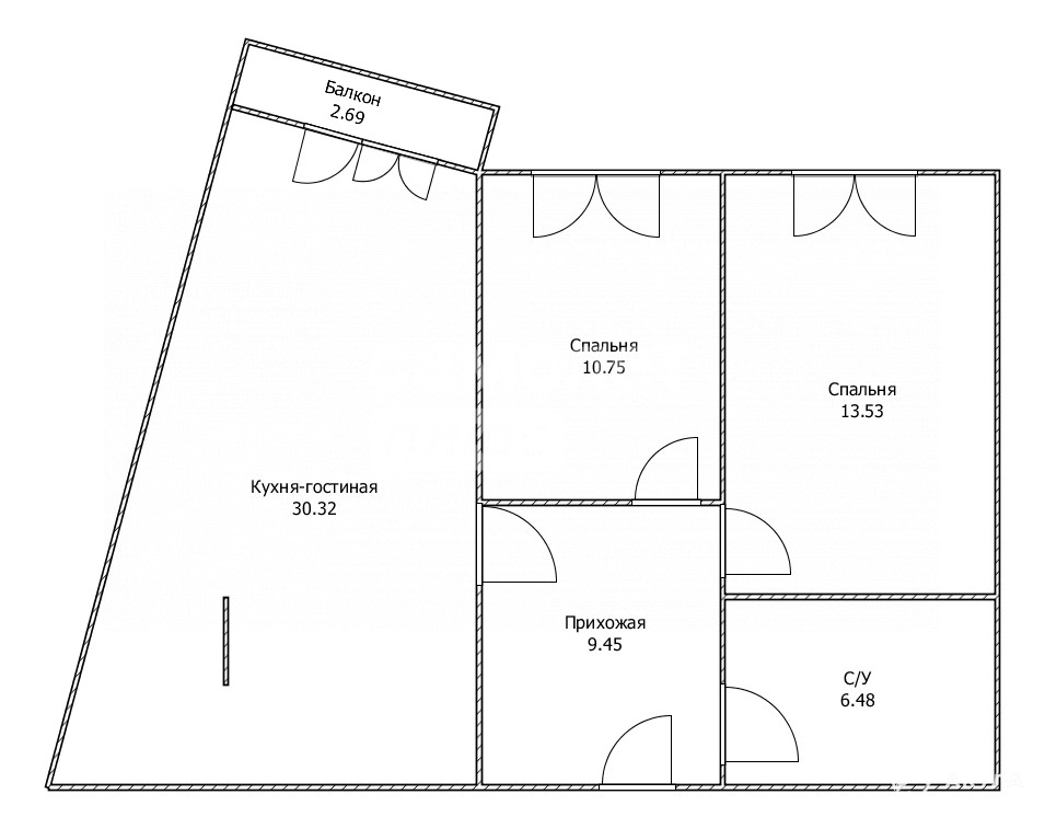
73 м²
Площадь
54.6 м²
Жилая площадь
10 м²
Площадь кухни
3/10
Этаж

5 850 000 ₽

79 897 ₽ за м²

ID объявления 12284729

Поделиться

Добавить в избранное

Арт. 123948111
Продаётся 2-комнатная квартира в Железнодорожном районе

ПРО ДОМ:
Монолитно-Кирпичный 11-ти этажный домУхоженный подъездМного парковочных мест

ПРО КВАРТИРУ:
Функциональная планировкаЗастекленный балконпросторная кухня с выходом на балкон


ПРО ЛОКАЦИЮ:
Детский сад: №118, №216Гимназия №30Супермаркеты: Пятёрочка, Красное&БелоеВ шаговой доступности расположено всё необходимое для комфортной жизни: аптеки, пункты выдачи, банкоматы

ПРО ДОКУМЕНТЫ:
Возможность оформления ипотеки Использование материнского капитала Возможность использования различных видов сертификатов Квартира без долгов и обременений


Не упустите шанс стать владельцем этой замечательной квартиры.

Позвоните нам прямо сейчас и запланируйте свой просмотр.

Мы готовы помочь вам сделать первый шаг к вашей новой жизни!

Дата обновления: 13 января 2026