645 580 ₽/мес

1 302 ₽ за м²/мес.

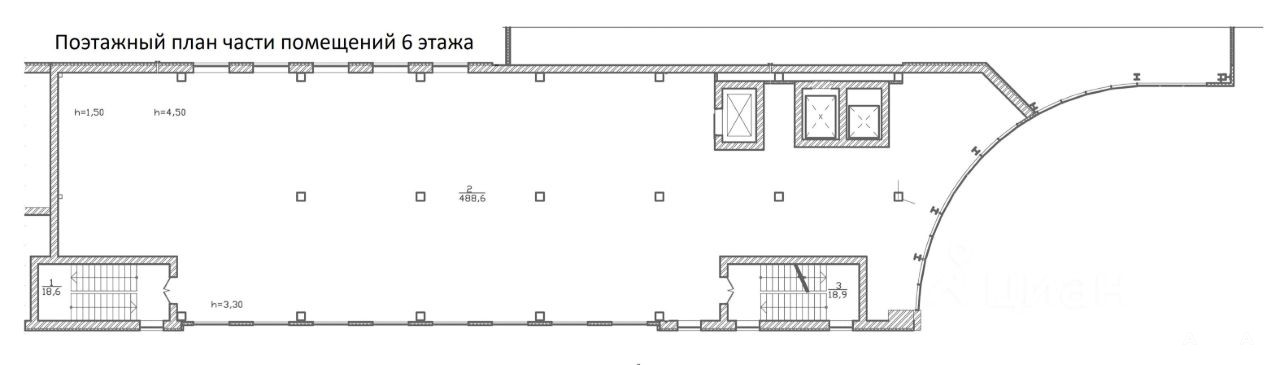
496 м²
Площадь
6/6
Этаж

Поделиться

Добавить в избранное

Описание
Офис Помещение Торговое 496, 6 м²
БЕЗ КОМИССИИ ДЛЯ АРЕНДАТОРА!
Номер объекта в базе # 21299
Площадь: 496 кв.м
Этаж: 6
Этажность: 6
Все коммуникации проведены
Доступ в помещение: 24/7
Количество входов: 2
Коммунальные платежи: Оплачиваются отдельно.
Электроснабжение:30 кВт
Высота потолков: 3 м
Санузел: Совмещённый
Назначение: Без профиля, любое коммерческое использование
Примечание: Полностью оснащенные помещения: пять офисов, панорамная зона с коворкингом, складные лекционные комнаты, отдельный лифт, вход с парковки. Ремонт, сантехника, вентиляция, отопление, пожарная и охранная сигнализация, эскалаторы, лифты.

В настоящий момент помещение свободно

Аренда: 645 580 рублей/месяц

DAEVROPA с радостью поможет вам найти лучшее решение, соответствующее вашим требованиям и финансовым возможностям. Звоните или пишите — мы всегда на связи!

 

Дата обновления: 22 октября 2025

Помещение Офисно-складское